Обяви За нас Контакти
Продава 3-СТАЕН
град Пловдив, Остромила
109 900 €
214 945.72 лв.

(1 182 €, 2 311.79 лв./m2)
Цената е с включено ДДС
Публикувана в 12:15 на 4 февруари, 2026 год.
Обявата е посетена 75 пъти.
Площ:
93 m2
Етаж:
4-ти от 4
Строителство:
Тухла, Ще бъде въведен в експлоатация 2028 г.

Описание на имота:


📢 0% КОМИСИОН ! - ДИРЕКТНИ ПРОДАЖБИ ОТ ИНВЕСТИТОР!📢
ОФЕРТА : 16690
РАЗСРОЧЕНИ СХЕМИ НА ПЛАЩАНЕ! ⏩ВЪЗМОЖНОСТ ЗА БАНКОВ КРЕДИТ!

➢ Агенция за недвижими имоти 'ГОЛД ИМОТИ' с удоволствие представя най-новия проект в нашето портфолио две бутикови жилищни сгради на три и четири етажа, отличаващи се с модерен архитектурен стил, висок стандарт на изпълнение и внимание към детайла.

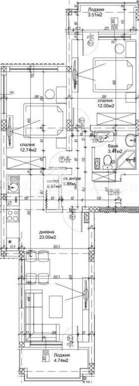
➡️Разпределение и етаж :
-Коридор,Дневна с трапезария и кухненски бокс ,две спални ,баня с тоалетна ,склад , в който ще бъдат изведени изводи за обособяване на перален кът и две тераси.
-Жилището е позиционирано на последен четвърти етаж.
☀️Изложение : Жилището е с изложение Изток - Запад-Север

Предимства на последния етаж :
По -добра гледка и максимално естествено осветление.
По-малко шум от съседи и улица повече спокойствие.
Повече уединение и комфорт.
По-чист въздух
Скатен покрив - по -голяма защита .

-Проектът залага на ниско застрояване, зелени площи и спокоен жилищен комфорт идеалната комбинация за ценителите на качествената градска среда.
-Фасадата впечатлява с изчистена визия и елегантна цветова комбинация, допълваща съвременния характер на комплекса.

✨Характеристики и предимства :
-Партерни апартаменти с индивидуални дворни пространства.
-Във всяко жилище има проектиран склад ,за обособяване на перален кът .
-Контролиран достъп чрез бариера
-Тиха и зелена жилищна среда

✔️Степен на завършеност :
- Ел. инсталацията с монтирано ел. Табло с ДТЗ, с поставени ключове и контакти;
- Водопроводните и канализационните тръби, изпълнени до тапа с монтирани водомери;
- Положена инсталация за кабелна телевизия и интернет;
- Домофонна система с видео наблюдение.
- Монтирана входна блиндирана врата;
- Фасадната дограма - 5-камерна двуцветна ПВЦ със стъклопакет с мултифункционално стъкло

🅿️Паркиране :
Паркирането в комплексът е осигурено на 100% .
Има възможност за покупка както на партерни гаражи , така и на външни паркоместа .

➡️ Инвеститор :
Доказан и стабилен инвеститор с богат опит и успешно реализирани проекти, гарантиращ качествено изпълнение и високи стандарти.

📌Локация :
- Идеален микс от комфорт, чист въздух и спокойствие усещане, което рядко се среща в градските квартали.
- Достъпът до сградата се осъществява от няколко възможни маршрута .
- В непосредствена близост се намира до 'Via Park' Южен , магазин Mini Mart , няколко основни пътни артерии , както и достатъчно спирки на градския транспорт.

➡️ ГОЛД ИМОТИ Ви предлага да се възползвате от професионално кредитно посредничество чрез Credit Center при ипотека, потребителски кредит и рефинансиране!
-УСЛУГАТА Е ИЗЦЯЛО БЕЗПЛАТНА!
-ИЗГОТВЯНЕ НА НЯКОЛКО ОФЕРТИ ОТ ВОДЕЩИ БАНКИ!
-НАЙ-ИЗГОДНИ УСЛОВИЯ СПРЯМО ВАШИЯТ ПРОФИЛ!
-НЕ Е НЕОБХОДИМО ДА СЕ РАЗКАРВАТЕ ВЪВ ВСЕКИ КЛОН НА РАЗЛИЧНИ БАНКИ!
➡️ Още атрактивни и актуални оферти може да разгледате на нашият сайт: www.goldhome.bg
📞 За повече информация и при интерес за оглед, моля свържете се с нас.
Особености
Тухла
Асансьор
С гараж
С паркинг
Интернет връзка
Контрол на достъпа
За контакт:
0894 274 966
Брокер:
Таня Сатанска
0894274966
Офис: улица '' Брезовска '' 31а
Още оферти от брокера: Продава | Дава под наем | Купува | Наема
Агенция:
ГОЛД ИМОТИ
0899143262
ГОЛД ИМОТИ logo
Медал за прослужено време
В imot.bg от 2018 г.
gold_imoti.imot.bg
Адрес:
област Пловдив, гр. Пловдив, улица '' Брезовска '' 31а
ИЗПРАТИ ЗАПИТВАНЕ
ИЗПРАТИ ЗАПИТВАНЕТО

Продава 3-СТАЕН
град Пловдив, Остромила
Обява: 1c177020011061041

109 900 €
214 945.72 лв.
(1 182 €, 2 311.79 лв./m2)

Цената е с включено ДДС
ЗАПАЗИ ОБЯВАТА

Местоположение: град Пловдив, Остромила

Допълнителни данни за имотите в района и сравнение с други райони

Покажи

Период

и 2 месеца

* Средните цени са определени чрез медианна стойност